Prodej domu 6+1, 156 m²
Kutná Hora - Miskovice, Přítoky
6 750 000 Kč
Dovolte mi Vám nabídnout ke koupi rodinný dům, nacházející se na klidném a malebném místě, v obci Přítoky - na okraji Kutné Hory. Dům o dispozici 6+1 byl postaven v roce 1979, a to na pozemku 754m² - hezká udržovaná zahrada, na které máte k dispozici, mimo jiné, také kryté parkovací stání a garáž. Nemovitost se může pochlubit celkovou obytnou plochou 156 metrů čtverečních. V přízemí se nachází bytová jednotka 4+1 po rekonstrukci v roce 1995, navíc s prostornou - jižně orientovanou terasou.
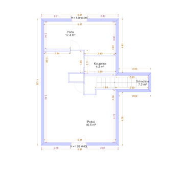
V Suterénu máte k dispozici letní obývací pokoj s kulečníkem a přímým vstupem do zahrady, tři skladové místnosti, kotelnu s poloautomatickým kotlem na tuhá paliva a také praktickou prádelnu, vybavenou pračkou a sušičkou. Podkroví je v původním stavu a nebylo doposud nijak využíváno, je zde zatím jedna větší místnost, půda a koupelna. Budete potřebovat, můžete však snadno v podkroví vybudovat další bytovou jednotku, nebo další pokoje. Dům je částečně zařízen a po dohodě s prodávající může v domě zůstat skoro vše co je na fotografiích (gauč, nábytek, postele, pračka, sušička, kulečník atd.).
Exteriér domu doplňuje terasa a velká zahrada, poskytující dostatek prostoru pro venkovní aktivity, zahradničení nebo klidné posezení s rodinou a přáteli. Objekt je samozřejmě napojen na veřejnou kanalizaci a vodovod. Konstrukce domu je dřevostavba, podstavena na zděném suterénu. Dům je tak poměrně dosti variabilní, co se úprav týče. Lokalita je v dobré dostupnosti k městským službám Kutné Hory, nabízející veškerý komfort včetně škol, obchodů, restaurací a kulturních zařízení. Historické centrum je od domu vzdáleno pouze 2,5 km, což se dá procházkou bez problémů zvládnout. V okolí jsou turistické stezky a přírodní koupaliště.
Pokud hledáte domov, kde se snoubí pohoda, přírodní krása a dostupnost městského života, neměli byste si tuto nabídku nechat ujít. Přijďte se osobně podívat, co všechno tento rodinný dům v nabízí, zvu Vás na prohlídku.
FOTOGALERIE





























VIDEOPROHLÍDKA
PŮDORYS



