Prodej vícegeneračního domu, 398 m²
Tylova, Kutná Hora
15 750 000 Kč
Nabízíme k prodeji prostorný vícegenerační dům s komerčními prostory a terasou, který se nachází na prestižní adrese Tylova 404/11 ve Vnitřním Městě Kutné Hory jen 150m od Palackého náměstí. Celková zastavěná plocha domu činí 293 m², přičemž stejně velká je i parcela, na které dům stojí. Disponuje dvěma nadzemními podlažími a jedním podzemním a půdou, ze které se dá udělat plnohodnotné podlaží. Díky tomu je dům ideální pro vícegenerační bydlení nebo pro kombinaci bydlení a podnikání. Jedná o investičně atraktivní objekt s obrovským potenciálem pro zhodnocení.
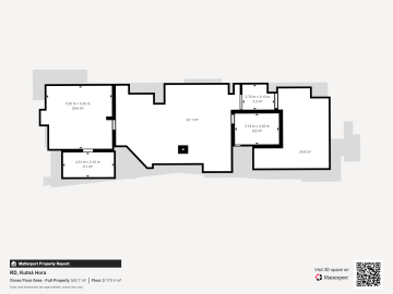
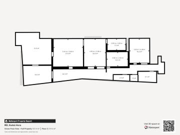
V přízemí se nachází prostor bývalé prodejny Drogerie U Bláhů a aktuálně provozovaná opravna obuvi, kde končí nájemní smlouva 31.10.2025. Provozovna obuvi není obsažena v 3D prohlídce, ale samozřejmě je také předmětem prodeje. Obě jednotky mají samostatný vstup a disponují sklady a sociálním zařízením. Ke schodišti do sklepení a dalších pater se dostanete dalším samostatným vchodem. Máme zde tedy 3 vchody. V prvním patře se nachází 6 místností, sociální zařízení a terasa. Možnost využití jako kanceláře nebo bytové jednotky. Prostorná půda s vysokým krovem a betonovou podlahou se vybízí k vybudování dalších místností, nyní jsou zde dvě dílny a půda.
Nemovitost je z většiny podsklepená a sklep je suchý se standartně vysokým stropem. Dům je ihned k dispozici k realizaci vašich projektů a ŽÁDÁ SI OSOBNÍ PROHLÍDKU. Nemovitost je připojena na všechny sítě, veřejný vodovod, kanalizace, plyn a elektřina. Štítek PENB a technická zpráva nemovitosti jsou v přípravě.
Pokud hledáte nemovitost, která kombinuje historii a podnikání či život ve skvělé lokalitě, tento dům v Kutné Hoře bude ideální volba pro vaši rodinu, firmu nebo jako investice do budoucna. Majitel nemovitosti si vyhrazuje právo výběru kupujícího na základě záměru s nemovitostí a výši případné nabídky.
V případě zájmu mě prosím kontaktujte pro dohodnutí prohlídky.
FOTOGALERIE























PŮDORYS



